浅谈半潜船艏楼甲板开口要求
新闻来源:中国船检
浏览量:1859
李轩 黄东伟 2018-01-15
2013年10月份,俄罗斯Yamal LNG项目正式获准开工,这是俄罗斯北极圈超过30万亿立方米天然气开采及液化运输工程的里程牌。大量的钻井、开采及液化设施模块化单元将主要在中国制造,然后通过预计10艘半潜船/甲板船运输到欧洲港口。中远5万吨半潜船“祥和口”为这个项目而设计制造的。目前,“祥和口”已经完成首航次,把三个大型LNG生产线模块顺利运达萨贝塔港。
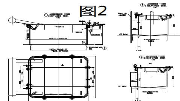
笔者在建造检验过程中,发现艏楼顶甲板上的小舱口围板高度为600mm,图1为中顶甲板舱口盖的布置和图2为设计图纸对舱口围板高度要求。


笔者对此产生了疑问,难道艏楼顶甲板是《载重线公约》第13条定义的位置1?笔者翻阅《载重线公约》,公约第13条定义如下:“位置1:在露天的干舷甲板上和后升高甲板上,以及位于从首垂线起船长的四分之一以前的露天上层建筑甲板上。
位置2:在位于从首垂线起船长的四分之一以后,且在干舷甲板以上至少一个标准上层建筑高度的露天上层建筑甲板上。
在位于从首垂线起船长的四分之一以前,且在干舷甲板以上至少两个标准上层建筑高度的露天上层建筑甲板上。”
从图3“祥和口”的总布置图可以了解到,该船的干舷甲板距基线13米,而艏楼顶甲板距基线为30.34米,干舷甲板和艏楼顶甲板之间还有多层甲板,显然不能套用《载重线公约》关于位置1、2的定义。

按照《低调看直播官网_NBA极速体育直播_jrs西甲直播与海上设施法定检验技术规则》第3篇《载重线》的“说明与要求”第7条“载重线的浸没”第4点,“半潜船在半潜作业状态下应满足《国内航行海船法定检验技术规则》第3篇第5章的相关要求”。
《国内航行海船法定检验技术规则》第2篇第5章“半潜船的特殊要求” 3.3条规定,最大沉深水线以上第l 层甲板为露天甲板时,其上的开口应满足本篇第2 章有关位置l 处开口的规定。最大沉深水线以上第2 层甲板为露天甲板时,其上的开口应设有合适的关闭装置,其高度应满足本篇第2章有关位置2 处开口的规定。由最大沉深水线以上第l层露天甲板延伸而超出第2层露天甲板的机舱通风筒,其围板超出第2层露天甲板的高度可不小于760mm,但其上的开口应设有合适的关闭装置。
最大沉深是指半潜作业状态下允许下潜到的最大吃水。就该船而言最大沉深为26米(如图4所示),红色线段的顶甲板(即Fr258-Fore,如图5红线阴影部分)为最大深沉水线上第1层露天甲板,其上的开口应满足位置1的要求;由于上间甲板高于最大沉深水线,因此紫色线段的顶甲板是最大沉深水线以上第二层甲板,其上的开口应满足位置2的要求。


而该船的艏楼顶甲板的小舱口都开在Fr258朝尾,在位置2,按照《载重线公约》第14-1条的要求,舱口围板最小高度为450mm,而设计图纸要求的高度为600mm,满足要求。
微信公众号
官方微博



